Byfords, the new owner of the Old Brewery House Hotel in Reepham, is planning to change the name of the building back to The Dial House, which many local people seem pleased about.
The Holt-based company is also proposing a major switch of offer from a pub, hotel, banqueting hall and sports club to a café, interiors retail shop, B&B and residential houses.
Following a planning application, possibly in April, it hopes to open the eatery/shop in July.
Meanwhile, more than 300 people attended an open house event at the Old Brewery House on 31 January, which included guided tours and the opportunity to view some of the initial development ideas and share ideas.
Iain Wilson of Byford’s said: “We really want to ensure we match what local people require so the venture has as much chance of survival as possible and adds to life in Reepham.
“Several new ideas came from the evening and our plans have changed in areas for the better. A massive thank you to all concerned for our positive welcome to the town.”
Many of the comments focused on the desire for an evening eatery/restaurant rather than a daytime café/coffee shop and the provisions for parking for customers, staff and residents.
With four cafés already in Reepham, Mr Wilson said he has now scrapped the term “café” as this may have been misleading: “Ideally, we want to create an experience that is really good-quality, restaurant-standard food, but also a place where you can nip in and just have a cup of coffee, read a paper and feel really comfortable.”
He explained that an evening restaurant has always been the ultimate ambition, although after the bedrooms have been refurbished. But “maybe we will open on Friday and Saturday nights from the start?”
The bar, however, will be removed, and the existing conservatory demolished.
Mr Wilson said the all-day eatery will aim principally at a more mature market. While children will be welcome and catered for, the main emphasis will be to build “an experience for grown-ups” – the Dial House is not planned to be another establishment along the lines of The Pigs at Edgefield.
And there are no plans for a deli like Byford’s of Holt. “A food retail offer needs good footfall and we are not convinced the building and what we have planned sets itself up for food retail,” said Mr Wilson.
Interiors destination
The home/interiors retail offer also planned for the ground floor will actively steer away from Hampton’s offering, as well as that provided by Bonhams, Butler & Castell, Kerri’s Farmhouse Pine and the new antiques shop planned to open soon on Norwich Road (where Virginia’s Workbox is located).
“It is really important that what we do from a retail perspective adds value to what the rest of the town is offering and compliments others as opposed to duplicating what’s already available,” said Mr Wilson.
“It is our genuine aim to work with others so Reepham as a whole gains a bigger draw on the catchment around it.”
The proposal is for six to nine “posh” B&B rooms being retained in the upstairs of the main building.
Acknowledging the need for good-quality B&B/hotel rooms in Reepham, Mr Wilson explained that the plan is to renovate the downstairs area first, then the residential site to the rear and, when funds are in place, return to the main house and refurbish the upstairs.
The whole project could take around five years, depending on house sales. “It will be great to pull people in from further afield to enjoy the town,” he said.
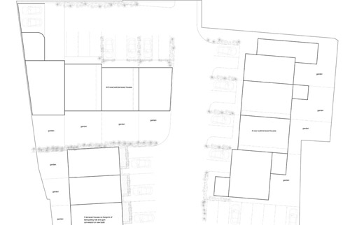
While the sports club will be demolished, the existing banqueting hall will be converted into five three-bedroom terrace houses.
The total plan for residential dwellings at the rear of the main house calls for the creation of five two-bedroom houses and 13 three-bedroom houses, all with their own parking.
This project will be looking to appeal to the 45+ age group with a preference for permanent residents as opposed to holiday homes.
While there will no longer be a large function room available, it may be possible to hire out one of the four main rooms in the building for private use.
Further, there are plans to include a “cut through” beside the old well to the left of the Dial House frontage, which will provide permanent, direct access from the proposed residential area through to the Market Place.
On the parking issue, Mr Wilson argued that by offering parking for each house and every B&B bedroom, “we are improving the situation from when the Old Brewery was operating at a reasonable level, as we will be taking away the additional parking needed in the town when large functions were held.
“In terms of the food and beverage and retail offer, it’s pretty much like-for-like as few people used the rear car park before, mainly sports club users, residents and staff.”
With parking being a hot topic of discussion amongst the Town Council, Chamber of Commerce and the Town Team, “it is essential there is good access to the town for any trader to have a chance”, Mr Wilson said.
See our earlier news stories:
- 'Dial House' cafe and shop planned to open in July
- Open house invitation at the Old Brewery
- Byfords completes purchase of the Old Brewery House
Download The Dial House plans January 2014 HERE

