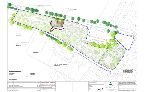
A planning application for a clubhouse and management offices for the Ashtree Care Village on Stony Lane, Reepham, has been granted full approval, with conditions, by Broadland District Council.
This involves a new building for the estate residents to receive meals, attend social events and meetings and comprises seating space, a servery area and a kitchen. It will also contain an office suite for day-to-day management operations.
The site for the clubhouse building is set between an existing group of 15 care dwellings to the west and a potential future second phase of a further 22 care dwellings to the east.
See our earlier story:
Altered plans for care village submitted to district council
See the earlier EDP story HERE.

